1675 Discovery Street,
Vancouver, B.C. V6R 4K5

Friends of Jericho Arts Centre
Board of Directors
Chairman: Adam Henderson
778 883 2241

in the park by the beach

1675 Discovery Street,
Vancouver, B.C. V6R 4K5

Friends of Jericho Arts Centre
Board of Directors
Chairman: Adam Henderson
778 883 2241

Theatre Specifications

1. HOURS

Hours for access need to be negotiated with JAC and, typically, the space can be booked in 4 hour blocks as follows:
9am to 1pm
2pm to 6pm
7pm to 11pm

back to top

2. DISABLED ACCESS

JAC is wheelchair accessible.

back to top

3. TECH STAFF CHARGES

A technical director (TD) representating JAC must be present whenever technical equipment and other inventory are being accessed by Guest Productions.

The TD has an extensive knowledge of the equipment, facilities and capabilities of JAC and can assist in planning and set-up of productions. TD hours must be negotiated in advance to define the scope of work and the estimated hours required. Time is charged at the reasonable rate set by JAC and this cost is in additional to any rates defined in the Guest contract.

A Technical Operater (TO) is to be provided by the Guest Production to run lighting and sound for all performances. The TO must have a basic knowledge of the equipment in JAC and experience in its operation during tech and performances.

back to top

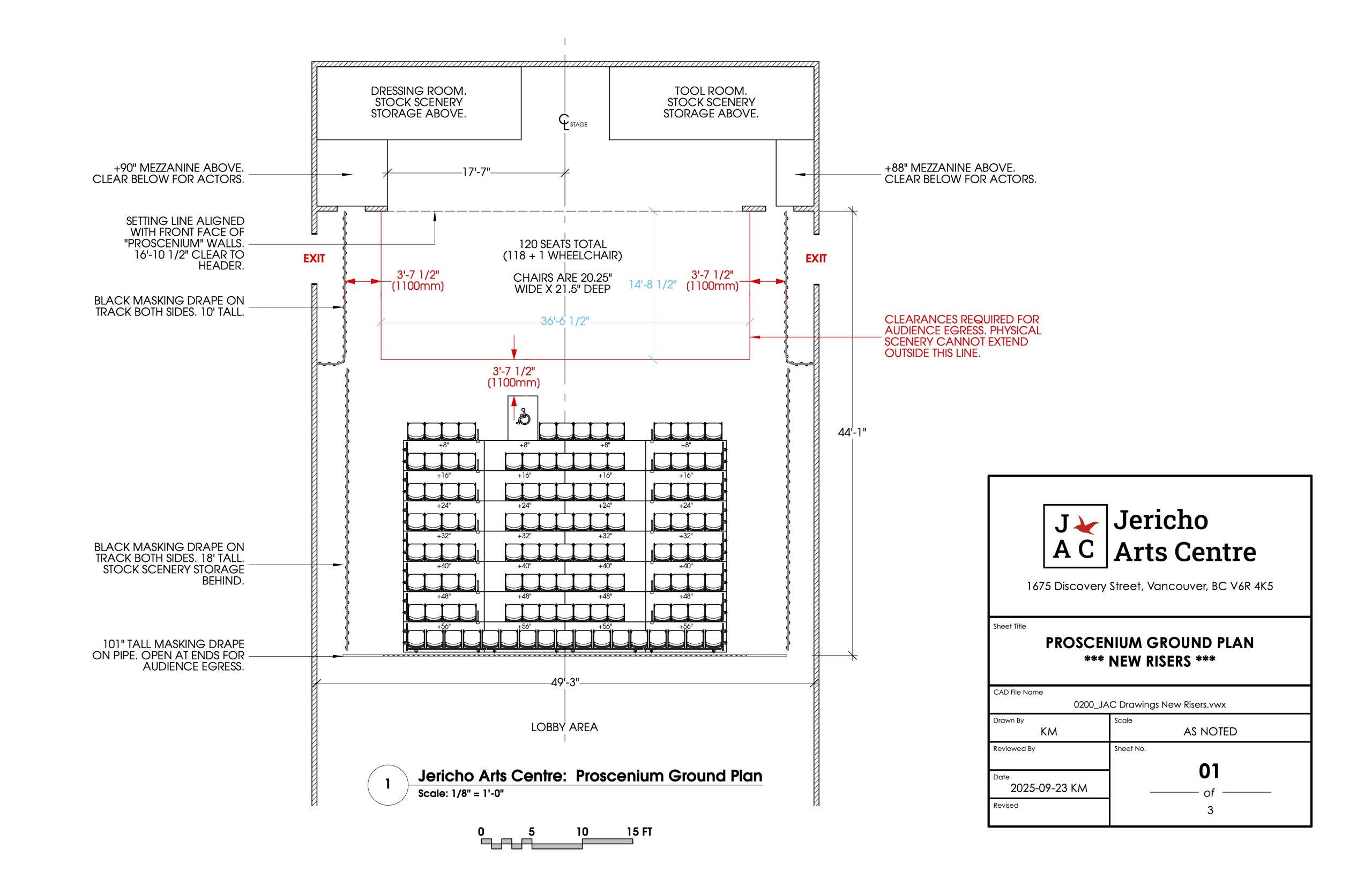
4. THEATRE CAPACITY

Under COVID 19 protocols we expect to start the season with a maximum of 50 audience members and the ability to simultaneously live stream performances on the internet.

In normal times The Jericho Arts Centre is a multi-purpose facility permitting audience seating in a wide variety of formats up to 146 seats.

The JAC currently has audience risers in 5 levels at the following heights:
8 inches 15 inches 22 inches 29 inches 36 inches
There are 4 risers at each height. Each height may be bolted together to forn one complete unit 32 feet wide. They may also be separated into 2 units 16 feet wide or 4 individual units 8 feet wide. These risers are not to be used, touched, taken apart, moved or painted without prior arrangement with the company Technical Director. These are also not to be used as stage risers.

The house reserves 3 seats per performance. These house seats may be returned to the box Office for sale 1 hour prior to each performance at the discretion of Theatre Management.

back to top

5. STAGE DRAPERIES

2 30′ x 17’10” side masking drapes on tracks. Velour – PERMANENT
2 10′ x 17’10” Black Duvetyn Legs
2x 15′ x 10′ Black Duvetyn exit masking on track – PERMANENT
1 50′ x 15′ Black Pleated traveler. Velour (in 2 pieces – 25′ wide each) – PERMANENT
1 Lobby / House division drape – black corduroy on track w/manual crank by pipe – flat – PERMANENT

back to top

6. DRESSING / GREEN ROOM

1 changing room with makeup mirror for 3 persons
1 women’s washroom & 1 men’s washroom
1 green room (waiting room with ironing board & sofas). The Green Room has three toilets. Capacity for a comfortable maximum of 15 actors.

back to top

7. COMMUNICATIONS

2 Clearcom wired headsets in control booth with extra sets available
6 Wireless com headsets for floor and backstage areas

back to top

8. LIGHTING INVENTORY

LIGHTING INSTRUMENTS

Led Lekos:
6x ETC ColorSource Spot Deep Blue
2x ETC ColorSource Spot V

Conventional Lekos:
33x ETC Source 4
5x Strand Zoom SL 23/50 575W (7 total – 5 available)
4x Strand Zoom 2205
11x Altman 360Q 6×9 36° 750W (18 total – 11 available)
0x Altman 360Q 6×16 19° 750W (1 total – 0 available)

Lenses:
2x 26° ETC S4 Lens Tube
29x 36° ETC S4 Lens Tube
2x 50° ETC S4 Lens Tube
8x 50° ColorSource Lens Tube

Frensel:
18x Altman 6″ Fresnel (27 total – 18 available)
0x Altman 3″ Fresnel (7 total – 0 available)

Pars:
5x Atlamn Parcan PAR64 (10 total – 5 available)
4x Chauvet Slimpar 56 (6 total – 4 available)

Cyc/Ground Row lights:
6x Strand QuartzColour Cyc – Iris ‘3’
2x Strand 4 Circuit ’15’ Ground Row

FOGGERS/HAZERS:
Chauvet DJ Hurricane Hazer
Antari Z-1000 Series II Fog Machine
Shenzhen Qiaohua Industries 1000W LTD Fog Machine
Lyte Quest Pro Little Dragon FG-2011 Fog Machine

ACCESSORIES
2 x Single Gobo Rotators
2x ROSCO I-Cue Intellegent Mirror
2x Apollo Ez Iris
TOTAL AVAILABLE FIXTURES: 129
TOTAL FIXTURES: 155

DIMMERS
96 in Strand CD80 Supervisor: 40 x 2.4Kw plus 56 x 1.8Kw
2x Relay Modules for LED use 4 circuits of dimmer
60 Circuits are in boxes distributed over the grid
24 Circuits are in Socapex splays available to be dropped where needed.
9 Circuits are required to be run individually from the dimmers in the booth.
Total 96 Dimmers

3x Strand 12ch Dimmers Packs are reserved for lobby and work lighting.

LIGHTING CONTROL
1 ETC ION with 2 x 20 Fader Wing
(Software updated)

LIGHTING GRID
See pdf drawing “Lighting Grid” at the end of JAC Tech Spec page
Grid height is 17’0″

Contact for other equipment available

back to top

9. AUDIO

Control:
Beringer X32 40 input digital mixer
https://www.behringer.com//Categories/Behringer/Mixers/Digital/X32/p/P0ASF#googtrans(en|en)

Speakers:
4x EV Sx 80 with clamps, located in the grid.
7x EV EVID 3.2 mounted to the walls of the theatre in a surround configuration.

Power:
2x QSC 300w stereo amplifiers for SX 80 mains
2x 1000w Yamaha amplifiers powering the overhead speakers
1x QSC CX168 powering the 7 perimeter speakers

Playback:
Apple Mac Pro 2013 (Trash can)
6 Lightining ports / 1 HDMI port
w/Qlab 3 & Qlab 4

Projection:
1x Sanyo PRO xtraX PLC-XC55
1x Canon X700
2x50ft vga cables
Cat 6-HDMI extender, 100ft CAT 6, 160ft CAT 6, VGA to Thunderbolt 2 adapter, HDMI to Thunderbolt 2 adapter.
VGA adaptors available

Contact for other equipment available

back to top

10. AERIAL ACCESS

1x 8′ x 3′ x 12′ Rolling Scaffold
1x 16′ Wooden Ladder
1×12′ Wooden Ladder
2 aluminum A frames 10 step

back to top

11. PRODUCTION DEADLINES

Regardless of the size or type of production you intend to produce, production deadlines must be met to ensure a smooth experience at the JAC:

Prior to contract signing
– agreement stating required times
– confirmation of 3rd party insurance coverage
– full contact details for production staff
– project details / statement
– pro forma income & expenditure plan (budget)
– publicity and marketing plan
– technical requirements
– design concept discussed
– front of house requirements
– box office requirements
– special considerations

1 month prior to load-in
– completed set design submitted to Technical Director

2 weeks prior to load-in
– completed lighting/sound designs submitted to Technical Director
– complete intended production schedule submitted to Technical Director

1 week prior to load in
– confirmed production schedule submitted to Technical Director
– complete list of your inventory submitted to the Technical Director

back to top

12. OPERATING RULES AND PROCEDURES

1) There is to be no eating or drinking in the green room, dressing rooms, back stage or control booth.
2) Smoking is prohibited within the building.
3) Persons not working on the production are not permitted anywhere back stage or the control booth.
4) All scenery construction and painting must be organized with the technical director prior to commencement.
5) All paint used in the theatre on any scenery must be water-based. No enamel (oil) paint is permitted.
6) If you require the stage floor to be painted a specific colour you are responsible for providing the paint. Painting of the stage floor must be requested in advance with the Technical Director. Upon closing of your production, you will also be required to paint the floor black prior to leaving the facility unless the Technical Director has approved leaving the floor as is.
7) Open flame or pyrotechnics are not permitted without permission in advance from the Technical Director.
8) Any special stage effects including, but not limited to, smoke machines, snow, water or flying must be arranged and approved in advance by the Technical Director.
9) Drilling, screwing and/or nailing into the stage or stage floor is not permitted.
10) The green room and dressing rooms must be cleaned on the closing night of your event. This includes the removal of all garbage to the metal garbage cans at the front door of the arts centre.
11) A complete inventory of all gear you wish to bring into the theatre with your event must be submitted to the Technical Director no later than I week prior to load-in date.
12) Any equipment belonging to the JAC or United Players including but not limited to lighting, sound, scenery, costumes and properties is not to be used without permission and/or supervision by the house technician or Technical Director.
13) The control booth, office and balcony and all of their contents are off limits. The house technician or technical director must be present for the control booth to be used.

back to top

13. DEPOSIT

A deposit of $650 cdn dollars is required at the time of signing of your rental contract to guarantee your rental time at the lAC. Provided that there is no damage to property at the JAC, this deposit may be rolled over into the contracted costs. Once your production has closed, your load-out is complete and the books have been closed on your box office receipts, JAC management will determine whether this roll-over is possible.

E & OE – all details subject to confirmation

back to top

14. SEATING PLANS & LIGHTING GRID

SEATING

PLEASE NOTE: JAC currently seats a maximum of 129 SEATS (127+1 wheelchair)
Seating – Empty, No Seat Risers
Seating – Alley
Seating – Thrust
Seating – In the Round
Seating – Proscenium
Lighting Grid & Sound Cabling

JAC
JAC Availability Calendar
Jericho Arts Centre Exhibition Terms & Agreement [MISSING]

MISCELLANEOUS DOWNLOADS
Front of House Sign-up Instructions

back to top